doorman's booth
- location
- Faculty for architecture - Ljubljana - Slovenia
- investor
- Faculty for architecture
- project date / realization
- 2004
- status
- realized
- photographs
- Miran Kambič
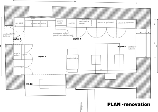
Golden pencil award 2004-2006 for best slovenian interior. The project’s goal was to renovate a small doorman’s booth in Ljubljana Faculty for Architecture. The booth is located on the most important “crossing” in the building – the main intersection of the horizontal and vertical path in the school. The room before renovation used to have a direct entrance overlooking to the main staircase and has been functioning as storage for numerous things. At the same time it was hosting a doorman, squeezed between boxes trying to see what is happening outside. After the renovation, the booth remains small. Despite that, it hides a number of functions behind its elegant minimalist image: doorman’s booth, information point for visitors, photo copying place, telephone switchboard, computer communications, mail distribution desk and meeting point for professors. Exactly made and minimalistic details present the "learning poligon" for students on their way to classrooms.















